關於我們
團隊成員
買屋查詢
店面
別墅
透天
公寓
華廈
大樓
套房
廠房
農舍
預售屋
其他
土地查詢
建地
農地
其他
租屋查詢
住屋
商辦
車位
土地
房市資訊
最新消息
房地產資訊
營業員專區
聯絡我們
Toggle navigation
關於我們
團隊成員
房屋查詢
土地查詢
租屋查詢
租屋查詢
房市資訊
營業員專區
▼
個人資料
聯絡我們
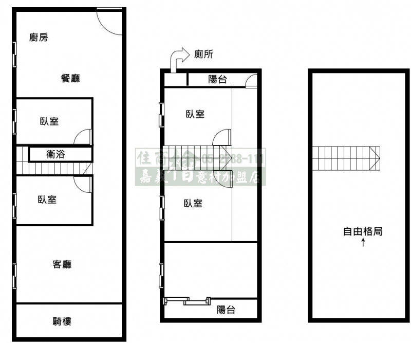
新港中庄美透天
案號
C1521A
用途
住家用
型式
透天
類型
透天
地點
嘉義縣
新港鄉
中庄村
社區
非社區
建物主面積
29.805坪
建物總面積
31.762坪
附屬建物
1.957坪
土地總面積
25.41坪
貸款試算
問題諮詢
服務人員李佳容
營業員字號:
95年登字第066979號
預約看房0913326156
聯絡信箱as0977265000@gmail.com
貸款試算
×
貸款金額(萬)
貸款年限
年利率%
計算
月平均貸款金額(萬)
試算結果僅供參考,實際貸款條件及相關費用,仍以銀行提供之產品為準。
問題諮詢
×
姓名
*
手機
*
信箱
內容
*
方便聯絡時段
*
晚上
下午
早上
不限
驗證碼
*
詳細資訊
新港中庄美透天
總價
580
萬
車位
不含車位價格
管理方式
無
樓層
1-2+3
格局
4房 3廳 2衛
車位種類
沒有車位
建造完成日期
民國70-11-17年 屋齡約(44年)
法拍件
非法拍
朝向
坐東朝西
電梯
無
面臨路寬
約5米
鄰近學校
古民國小、新港藝術高級中學、新港國中
鄰近公園
新港公園
其他
奉天宮
物件資訊內容以登記簿騰本或預售買賣契約為準,若有疑問請洽
承辦人員
特色說明
☆鄰近農田、綠地,空氣品質佳
★至新港中心區交通方便
☆周圍安靜,寧靜小區
★適合退休安逸生活
☆擁有濃厚的文化底蘊
服務人員資料
聯絡人員
李佳容
所屬公司
嘉義房地產有限公司
品牌名稱
嘉義住商檜意村加盟店
營業員字號
95年登字第066979號
公司地址
嘉義市吳鳳北路344號
電話
05-2788111
傳真電話
05-2771000
手機
0913326156
電子信箱
as0977265000@gmail.com